
TE-17 TERRENO VENDITA SPRESIANO
Euro 160,000 Spresiano
2344
Proprieta ID
1500 -MQ-
Dimensione
Camere
Bagni


Descrizione
Prezzo: 160.000 euro
Codice: TE-17
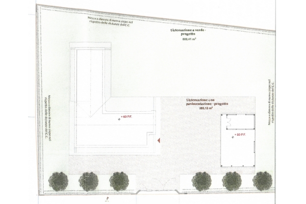
Terreno edificabile a Spresiano in zona residenziale completamente recintato di 1500 mq., capacità edificatoria di 1419 mc.. Il lotto è già lottizzato, con servizio di elettricità, acquedotto, fognatura e inoltre ha un pozzo artesiano. Nella proprietà è già stata costruita una casetta in legno con pompeiana. Viene venduta, con un progetto per una casa singola che si sviluppa tutta su un piano, con permesso di costruire rilasciato dal comune in Luglio 2025.
Address
Indirizzo / mappa Spresiano
Località: Spresiano
Comune: Treviso
Provincia: Spresiano
CAP:
Quartiere:
Panoramica
- Proprieta ID: 2344
- Prezzo: Euro 160,000
- Tipo proprieta:
- Stato proprieta:
- Camere:
- Bagni:
- Anno di costruzione: 2025
- Dimensione: 1500 MQ
- Giardino: 1419 MQ
- Garage: 1
- Dim. Garage: MQ